• Work
  • Resume
  • About Me

Gaetano R. Licata

  • Work
  • Resume
  • About Me

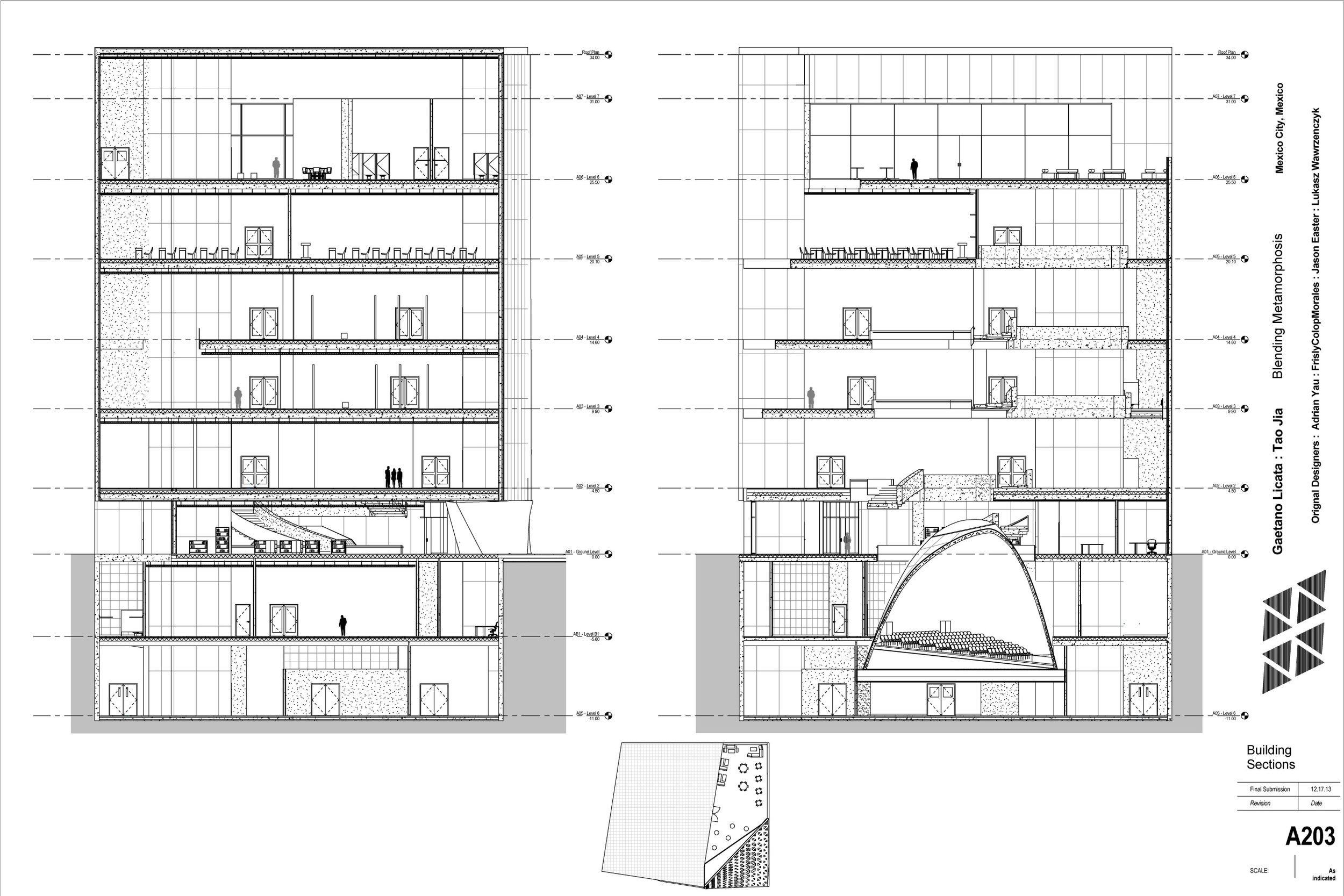
Blending Metamorphosis

Design Development 

Location: Guadalajara, MX
Team: Gaetano Licata, Tao Jia

 

Original design by : Adrian Yau, Frisly Colop Morales, Jason Easter and Lukasz Wawrzenczyk for the Cultural Center Chapultepec competition in Mexico City.

Exterior Curtain Wall Render.jpg
Exterior Perferated Wall.jpg
Interior Potato Render.jpg
Exterior Terrace View.jpg
Curtain-WallSection.jpg
Site Plan.png
Ground.jpg
Plans-4_5.jpg
Sections.jpg
DSC_0602.JPG
DSC_0640.JPG
DSC_0715.JPG

Powered by Squarespace 6